Hiša na prodaj, Bánd

Glavna stran » Hiša na prodaj, Bánd » Hiša na prodaj, Bánd

63 500 000 Ft

€163 470
Podatki oglasnika

Hámori-Ébel Emese

Pisanje sporočila
Sporočilo mora imeti najmanj 10 karakterov.
Opis

Prevedeno besedilo

Originalno besedilo
ELADÓ KÖZEPES ÁLLAPOTÚ CSALÁDI HÁZ BÁND KÖZPONTJÁBAN!


FIGYELEM!
- Az ÁR irányár, tehát ALKUKÉPES!
- 2 BEJÁRAT: Az ingatlan két utcáról is megközelíthető, a lakóépületbe pedig az udvar felől két külön bejáraton keresztül lehet bejutni. (Az egyik bejárati ajtó ÚJ műanyag ajtó)
- 2 GARÁZS: Az ingatlan földszintjén egy beépített garázs található (18,5 m2), továbbá az udvaron egy önálló, külső garázs is elhelyezkedik.
- Udvaron található kerti tároló
- Az ingatlan felújítandó!
- TEHERMENTES, tulajdonviszonyai rendezettek!
- A vételárba LAKÁS BESZÁMÍTÁSA is lehetséges, egyedi megállapodás alapján.
- Az esetleges elírások, információk és a változtatások jogát fenntartjuk


ALAPADATOK:
- Építési év: ∼ 1965
- Az ingatlan 4 szintes
- Szerkezete: Vegyes, KŐ és TÉGLA
- Szigetelés: emeleti részen 5 cm
- Belmagasság: földszinten 2,3 m, emeleten: 2,9 m

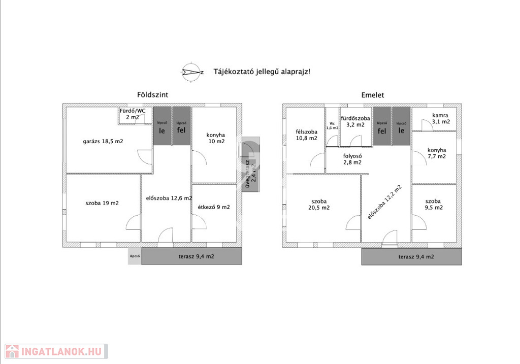
- Az alsó szinten található: 1 előszoba, 1 szoba, 1 konyha, 1 étkező, 1 fürdőszoba, garázs
- Az emeleten található: 2 szoba, 2 félszoba, 1 konyha, 1 kamra, 1 WC, 1 fürdőszoba

- Lakótér hasznos alapterülete: ∼ 140 m2
- A pincében található a gépészet (központi vegyes tüzelésű kazán + gázkazán)
- Terasz mérete: 9,4 m2
- Telek mérete: 877 m2 +71 m2


MŰSZAKI ÉS ESZTÉTIKAI ÁLLAPOT:
- A fűtést VEGYES TÜZELÉSŰ KAZÁN, valamint GÁZKAZÁN is biztosítja + radiátorok
- A melegvízről VILLANYBOJLER gondoskodik
- A nyílászárók eredeti fa nyílászárók
- A tető szerkezete jó állapotú, fedése pala
- A villany- és vízvezeték-hálózat eredeti

A KÖZELBEN TALÁLHATÓ:
- Bevásárlási lehetőségek
- A közelben található BUSZMEGÁLLÓ, akár a 8-as számú főút megállójától is könnyen elérhető.
- Veszprém 12 km távolságra

Az ingatlan felújítása és átalakítása kiváló lehetőségeket tartogat az új tulajdonos számára – a kedvező telekméret és a többszintes kialakítás sokféle elképzelés megvalósítását teszi lehetővé, legyen szó többgenerációs családi otthonról vagy akár vállalkozási célú hasznosításról.

Amennyiben az ingatlan megvásárlásához el kell adnia jelenlegi otthonát, úgy annak és a teljes folyamatnak a lebonyolításában is állok rendelkezésre!

További információkért forduljon hozzám bizalommal, hívjon a megadott telefonszámon - akár hétvégén is!


TOVÁBBI SZOLGÁLTATÁSAINK:
- Megbízható ügyvédi háttér
- INGYENES, FÜGGETLEN hitelügyintézés
- INGYENES, FÜGGETLEN biztosítási tanácsadás
- Energetikai tanúsítvány és ingatlan értékbecslés készítése
- Klíma rendszerek kiépítése és beüzemelése
- Riasztó- és kamera rendszerek kiépítése
- Közművek és szolgáltatók átírása
- Birtokbaadás lebonyolítása
- Kert- és tereprendezés
- Ingatlan takarítás
- Ingatlan felújítás
- Költöztetés

10 ÉVES SZAKMAI TAPASZTALATTAL!


#gonahome #tegyelprobara #keressbizalommal #mindenamiingatlan

podatki Hiša

140 kvadratni meter

877 kvadratni meter

Povprečno

Družinska hiša

Opeka

Drugo

Plinsko ogrevanje

Z vsem komfortom

Ni dano

Ni dano.

Ni dano.

Ni dano.