Hiša na prodaj, Budimpešta, II rajon.

Glavna stran » Hiša na prodaj, Budimpešta, II rajon. » Hiša na prodaj, Budimpešta, II rajon.

298 000 000 Ft

€768 299
Podatki oglasnika

Koppándi Zsuzsanna

Pisanje sporočila
Sporočilo mora imeti najmanj 10 karakterov.
Opis

Prevedeno besedilo

Originalno besedilo
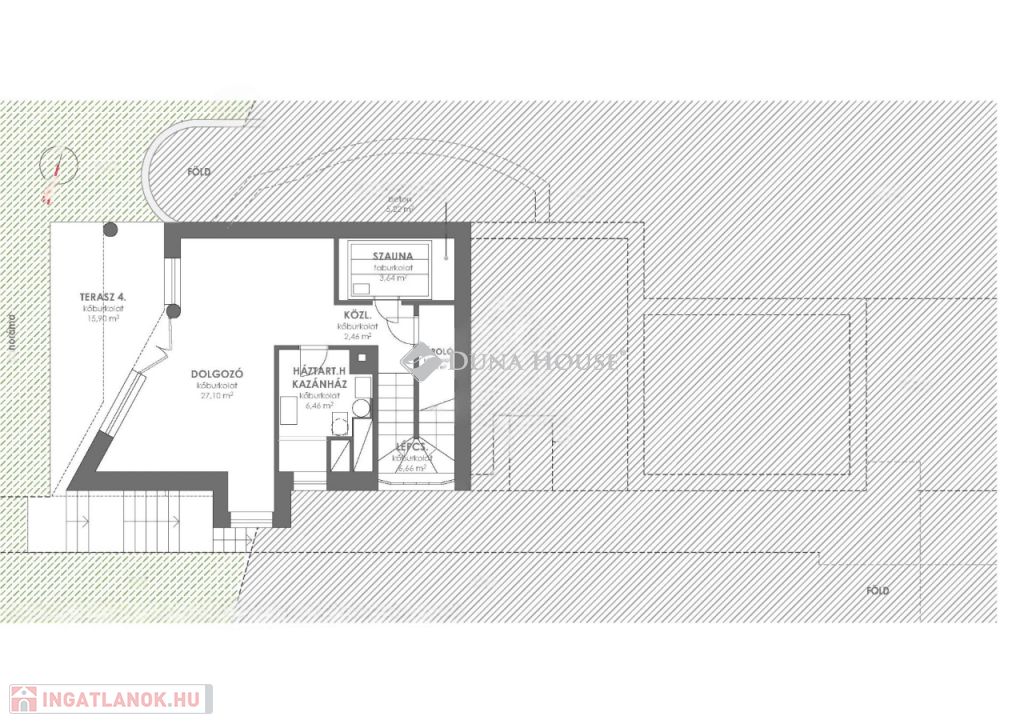
Eladó Panorámás Családi Ház Máriaremetén Elegancia és Modern KényelemBudapest II/A Kerület: Exkluzív Környezet, Kiemelkedő Műszaki TartalomKínálatunkban szerepel ez a 240 nm-es családi ház, amely a II/A kerület keresett, Máriaremetei zöldövezetében, csendes, panorámás utcában található. Az ingatlan a természet közelségét ötvözi a városi kényelemmel.Az otthont egy 897 nm-es, gondozott telek veszi körül, amely privát és nyugodt életteret biztosít. Az ingatlan tehermentes és riasztórendszerrel felszerelt.Térkínálat és KomfortTágas Beosztás: 5 szoba 3 gardróbszoba és 3 fürdőszoba ideális elrendezése nagyobb családok számára.Központi Zóna: Amerikai konyhás nappali, hangulatot teremtő kandallóval.Relaxáció: Saját szauna a mindennapi feltöltődésért.Kültéri Élet: 80 nm-es terasz, amely tökéletes helyszínt nyújt a panoráma élvezetéhez és a társasági eseményekhez.Kialakítás: Beépített bútorok és szekrények segítik a helykihasználást.Modern Technológia és FenntartásKörnyezettudatosság: A ház fűtését és hűtését hatékony hőszivattyús rendszer biztosítja.Fűtési Komfort: Házközponti padlófűtés szolgálja a kellemes hőérzetet, egyedi mérővel felszerelve.Garázs Extrák: Fűthető garázsleálló a téli napokra. Megkezdődött az elektromos autótöltési lehetőség kialakítása.Elhelyezkedés és ÉletminőségMáriaremete egyik legjobb utcája: zöldövezeti nyugalom és biztonság jellemzi a területet.Közlekedés: Kiváló tömegközlekedési kapcsolatok a belváros felé.Infrastruktúra: Boltok, iskolák, óvodák és orvosi szolgáltatások karnyújtásnyira.Ez a prémium családi ház tökéletes választás azoknak, akik egy panorámás, csendes, mégis központi helyen lévő, magas műszaki tartalmú ingatlant keresnek.Keressen minket bizalommal a megtekintés egyeztetéséhez!

Referencia szám: HZ073070-NOK

podatki Hiša

240 kvadratni meter

897 kvadratni meter

Odlično

Družinska hiša

Opeka

Električno ogrevanje

Ni dano.

Ni dano

21-50 let

Ni dano.

Pritlična hiša

Ni dano.

Zemljevid