Hiša na prodaj, Budimpešta, XVII rajon.

Glavna stran » Hiša na prodaj, Budimpešta, XVII rajon. » Hiša na prodaj, Budimpešta, XVII rajon.

118 900 000 Ft

€309 732
Podatki oglasnika

Ondrejovics Zsuzsanna

Pisanje sporočila
Sporočilo mora imeti najmanj 10 karakterov.
Opis

Prevedeno besedilo

Originalno besedilo
Kivételes lehetőség, csak irodánk kínálatában!
Kiváló adottságú, nagy telekkel rendelkező, 3 szobás, önálló családi házat kínálunk megvételre!

Eladó egy remek lehetőség a Kévekötő utcában, a dinamikusan fejlődő XVII. kerületben, Rákoskeresztúron!
Kiváló elhelyezkedés, nagy terek, sok lehetőség – tökéletes választás több gyermekes családoknak is!

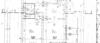
✔ Tágas, nettó 89 nm hasznos alapterületű ház
✔ 3 teljes értékű, külön nyíló szoba
✔ Nagy konyha, különálló étkezővel
✔ Ablakos kamra
✔ Háztartási helyiség / mosókonyha
✔ Kádas fürdőszoba+wc és külön wc
✔ Beépített 11 nm terasz
✔ Téglaépítésű, szigetelt, betonfödémes ház
✔ Beépíthető tetőtér
✔ Saját garázs és tároló különálló épületben (31 nm)


* 89 nm alapterület + 11 nm terasz + 31 nm garázs és tároló
* Előszoba 2,5 nm
*Folyosó 3,5 nm
* Kamra 2,5 nm
* Fürdőszoba + wc 4,5 nm
*Mosókonyha 2,5 nm
* Wc 1,5 nm
* Konyha 12 nm
* Szoba 19 nm
* Szoba 17 nm
* Szoba 12 nm
* Étkező 12 nm

* Belmagasság 2,8 m

Az ingatlan birtokbaadása csak 4-6 hónap múlva lesz esedékes!

Ne hagyja ki ezt a nagy potenciállal rendelkező ingatlant! Hívjon és nézze meg mielőbb!

BANKFÜGGETLEN hitelcentrumunk minden elérhető bank és hitelintézet ajánlatát versenyezteti az Ön kedvéért, ráadásul DÍJMENTESEN.
A legjobb ajánlatokból végül Ön választhatja ki a nyertest.
Munkatársaink sokéves szakmai tapasztalattal várják Önt, előre egyeztetve akár a normál munkaidő után is.

O.ZS.

podatki Hiša

89 kvadratni meter

880 kvadratni meter

Dobro

Družinska hiša

Opeka

Kondenzacijska cirko centrala

Plinsko ogrevanje

Z vsem komfortom

21-50 let

Ni dano.

Pritlična hiša

Ni dano.

Zemljevid