Prevedeno besedilo
Originalno besedilo
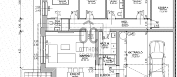
Eladó Nagymacson, a BMW-től 1 percre, új építésű, 157 m2-es, nappali-amerikai konyha-étkező + 4 külön nyíló szobás, dupla garázsos ikerház, 660 m2 telekkel, az alábbiak szerint:
> földszintes kivitelezésben, nagy és világos terek
> a nappali-konyha-étkező rész önmagában 44 m2, amihez kapcsolódik a félig fedett 14 m2-es terasz
> a hőszivattyús fűtés elektromos igényét teljes egészében fedezi az 5 kW-os napelem rendszer, ezért az épület fenntarthatósága kiváló
> 2 fürdőszoba és 3 WC biztosítja a reggeli készülődés zökkenőmentességét
> mind a 4 hálószoba külön nyílik és jól szeparált a nappali résztől, ezért a nyugodt pihenés garantált
> a szekcionált garázskapu is hőszigetelt, elektromos távirányítóval szerelt
> térkőburkolat, tereprendezés, füvesítés
> választható burkolatok színben és anyagban is (járólap-vinyl-laminált parketta)
> igény szerint a teraszhoz előtető rendelhető
> vételár tartalmazza az oldalsó- , utcafronti- , hátsó kerítés kialakításának a költségét, valamint az utcafronti elektromos, távírányítós nagykapu árát is
> a burkolatok mellett a beltéri ajtók is választhatók
Részletes műszaki tartalomért, további információkért, megtekintési időpontért hívja kollégánkat a hét minden napján!
157 kvadratni meter
660 kvadratni meter
Odlično
Dvojna hiša
Ni dano.
Ni dano.
Ni dano.
Ni dano
Ni dano
Ni dano.
Ni dano.
Ni dano.
Enostavno iščite hišo, stanovanje, urad, garažo, parcelo ali kakršnokoli nepremičnino v naši bazi podatkov!
The Nepremicnine.hu is a member of the Real Estate Group.
Nepremičnine na prodaj na Madžarskem - Nepremicnine.hu © 2026 Vse pravice pridržane