Hiša na prodaj, Dunaharaszti

Glavna stran » Hiša na prodaj, Dunaharaszti » Hiša na prodaj, Dunaharaszti

137 500 000 Ft

€363 171
Podatki oglasnika

Noszkay Zsuzsanna

Pisanje sporočila
Sporočilo mora imeti najmanj 10 karakterov.
Opis

Prevedeno besedilo

Originalno besedilo

RITKASÁG DUNAHARASZTI ÓVÁROSÁBAN!



Dunaharaszti méltán kedvelt részén, GARÁZS KAPCSOLATOS IKERHÁZ építése elindult, átadás: 2026. május-júniusra várható!



A lakások megtervezésének nagy gondot fordítottunk arra, hogy különböző igényeket elégítsünk ki, ezért egy kisebb és egy nagyon méretű ingatlan kerül kialakításra, élhető helyiségekkel, kiváló TELEK MÉRETEKKEL, magas MŰSZAKI tartalommal ELÉRHETŐ árakkal.



A két lakáshoz egy saját telekrészektől elszeparált 114m2-es KÖZÖS ÚT vezet be!



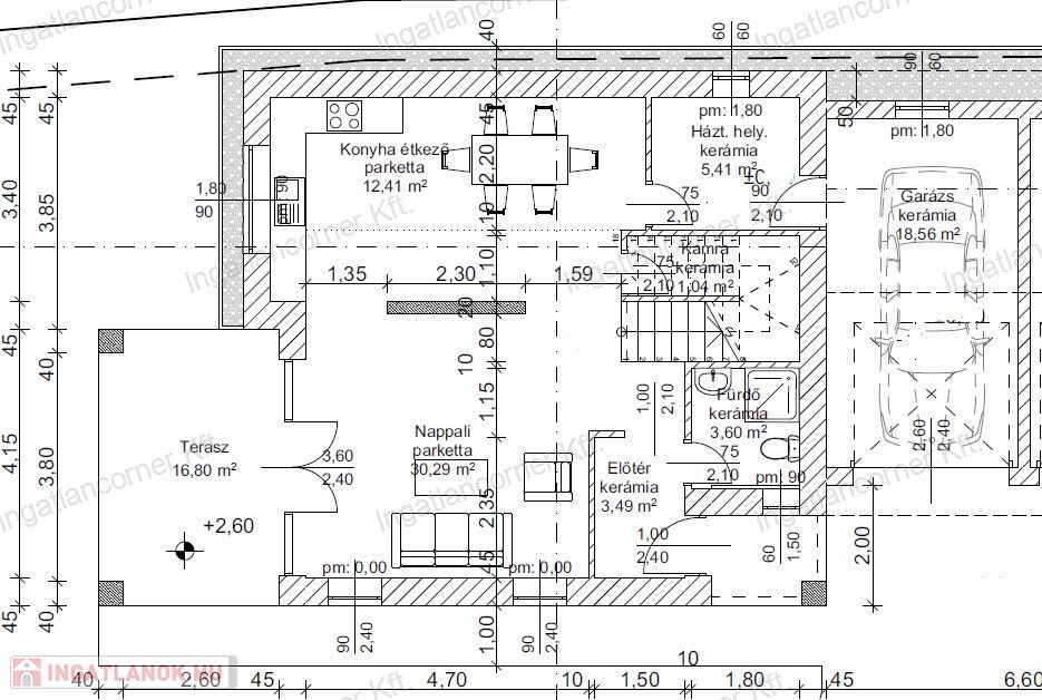
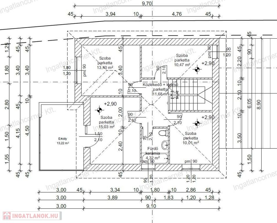
2.LAKÁS (BELSŐ KÉTSZINTES KIVITELBEN)

Telek terület: 549m2

Alapterület össz.: 140m2 (mely áll 122m2 lakótérből + 18,56m2 garázsból)

Teraszok: alsó szinten fedett terasz 16,80m2, emeleti terasz 13,22m2

Elosztás: nappali + 4 hálószoba, 2 fürdőszoba, külön háztartási helyiség, külön kamra.

Ára: 137.500.000.-Ft



1.LAKÁS (EGYSZINTES KIVITELBEN)

Telek területe: 436m2

Alapterület össz.: 120,39m2 (mely áll 101m2 lakótérből + 18,56m2 garázsból)

Terasz: 15,90m2 pácolt fenyőből készült PERGOLÁVAL (lásd látványterv)

Elosztás: nappali + 3 háló, 2 fürdőszoba, külön háztartási helyiség

Ára: 127.000.000.-Ft



ELOSZTÁSA minkét lakásnál KIVÁLÓ, ITT TÉNYLEG MINDEN MEGTALÁLHATÓ, AMI AZ ÁLOM OTTHONHOZ SZÜKSÉGES: tágas ELŐSZOBA, külön HÁZATRTÁSI HELYISÉG-MOSÓKONYHA, jó méretű SZOBÁK, KÉT FÜDŐSZOBA az egyik káddal másik zuhanyzóval felszerelve, és a HÁZ SZÍVE…. a hatalmas nyílászárókkal kialakított NAPPALI-KONYHA-ÉTKEZŐ a maga 43m2-vel!

TOVÁBBÁ A GARÁZS amely a LAKÁSBÓL IS MEGKÖZELÍTHETŐ, mely igény esetén plusz szobává alakítható.



MŰSZAKI ADATOK:

-KÖRÍTŐ FALAZAT: 45cm-es VIABLOKK téglából épül (Fő jellegzetessége: a kiváló hőszigetelő képesség, kiváló teherbírás, energia hatékonyság és a természetes alapanyagok jellemzik.)

- BELSŐ VÁLASZFALAK: 10cm viablokk tégla

- NYÍLÁSZÁRÓK: 3 rétegű, 5 kamrás fehér műanyag nyílászárók kerülnek beépítésre.

- FÖDÉMEN: 30cm-es (URSA) üveggyapot szigeteléssel, antracit színű beton cserepezéssel, antracit szinterezett eresz csatornával, telken elhelyezett szikkasztóba vezetve.

- PADLÁSFELJÁRÓ: kiépítésre kerül igény szerinti járható, pakolófelület kialakítható.

- BURKOLATOK: 8.000.-Ft/m2-ig a hideg burkolatok 8.000.-Ft/m2-ig a meleg burkolatok tartalmazzák a vételárat, melyek szabadon válaszhatók.

- FŰTÉS: 10 Kw-os HŐSZIVATTYÚRÓL működő PADLÓ és MENNYZETI HŰTÉS - FŰTÉSSEL kerül kiépítésre.

- MELEGVÍZ ELLÁTÁS: hőszivattyúra kötött 300 literes puffer tartály gondoskodik.

- HŰTÉS: HŐSZITYÚRA KÖTÖTT mennyezeti és padló HŰTÉS

- ELEKTROMOS KIÁLLÁSOK: 65 db. elektromos kiállást tartalmaz a vételár

- ELEKTROMOS HÁLÓZAT: 3x16 Amper (H tarifás óra kiállásának kiépítésével)

- BIZTONSÁG: Riasztórendszer alapcsövezésre kerül

- REDŐNY: rejtett redőny tok kiépítéssel (redőny, tok, szúnyogháló külön kérés esetén)

- FESTÉS: 2X glettelés ás 2x fehér festés az árban

- GARÁZS: SZEKCIONÁLT garázskapuval felszerelve MOTORIZÁLVA

- GÉPKOCSIBEÁLLÓ: a garázson kívül + 1 db. gépkocsi beálló kialakításra kerül mindkét lakás, saját telkén belül, kapuval együtt, motorizálás nélkül.

- KÖZÖS ÚT KAPURENDSZERE: kétszárnyas kapu (elektromos kiállással kiépítésével)

- UTCAFRONTONI KERÍTÉS: Leier előre gyártott kerítéseleméből készül.



Kiváló kivitelezésben, minőségi anyagokból, SZÁMTALAN REFERENCIÁVAL rendelkezünk, így igény esetén, akár TÖBB már megépített HÁZUNK is MEGTEKINTHETŐ a városban!



Közelében: Elhelyezkedésének köszönhetően, minden 10-15 perc sétával elérhető: iskola, óvoda, pékség, Baktay Tér, piac, tehát minden ami a napi élethez szükséges akár autó nélkül is elérhető távolságban.



-Építés kezdete: 2025.szeptember vége

-Az ingatlan 100%-os készültségének várható ideje: 2026.május-június



CSOK Plusz és 3%-os FIX hitel igényelhető!



Ha az ingatlan megvásárlásához el szeretné adni a jelenleg meglévő ingatlanját, ebben is nagyon szívesen segítek. Az Ingatlancorner kft. igen alacsony közvetítői díjjal, a legmagasabb színvonalon képviseli az Ön érdekeit.



Várom hívását! Amennyiben nem tudom felvenni a telefont, hamarosan visszahívom!

podatki Hiša

140 kvadratni meter

549 kvadratni meter

Odlično

Dvojna hiša

Opeka

Ni dano.

Ni dano.

Dvojni komfort

Novogradnja

Ni dano.

Ni dano.

Ni dano.