Hiša na prodaj, Dunakeszi

Glavna stran » Hiša na prodaj, Dunakeszi » Hiša na prodaj, Dunakeszi

64 500 000 Ft

€165 084
Podatki oglasnika

Virág Attila

Pisanje sporočila
Sporočilo mora imeti najmanj 10 karakterov.
Opis

Prevedeno besedilo

Originalno besedilo

Álmodd meg – valósítsd meg! Felújítandó ikerházfél Dunakeszi kertvárosi részén

 

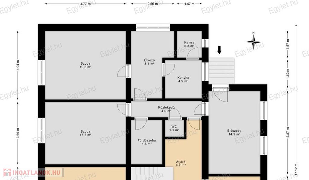
Saját otthont keresel, amit teljesen a saját ízlésedre formálhatsz? Dunakeszin, csendes, családi házas környezetben kínálunk eladásra egy felújítandó 80 m²-es ikerházfelet, a hozzá tartozó kizárólagos használatú 551m²-es telekrésszel. Az ingatlanhoz pince és beépíthető tetőtér is tartozik, így bőven van tér az elképzeléseid megvalósításához!

 

Miért ideális választás ez Neked?

✔ Ha saját ízlésed szerint újítanál fel egy otthont

✔ Ha nyugodt, zöldövezeti környezetben élnél

✔ Ha fontos a nagy kert és a bővítési lehetőség

✔ Ha azonnal kezdeni akarod a felújítást – az ingatlan tehermentes és azonnal birtokba vehető

 

Elhelyezkedés:

Dunakeszi egyik legkedveltebb részén – családbarát környék, jó közlekedés, közel óvoda, iskola, boltok

 

Az ingatlan jellemzői:

•             80 m² lakótér

•             pince

•             beépíthető tetőtér

•             nagy, közös telek (1102 m²)

•             az ikerház másik fele is eladó – akár barátokkal vagy családdal közösen is tervezhető

Ne hagyd ki ezt a lehetőséget, ha egy igazi otthonteremtő projektbe vágnál bele!

 

Hívj most, és egyeztess időpontot a megtekintésre!

 

Ügyfeleink részére pénzügyi tanácsadó és ügyvéd partnereink is segítséget nyújtanak.

podatki Hiša

80 kvadratni meter

551 kvadratni meter

Za obnovo

Dvojna hiša

Opeka

Centralno ogrevanje

Ni dano.

Z vsem komfortom

Ni dano

Ni dano.

Ni dano.

Ni dano.