Prevedeno besedilo
Originalno besedilo
Kulcsrakész önálló családi ház garázzsal eladó!
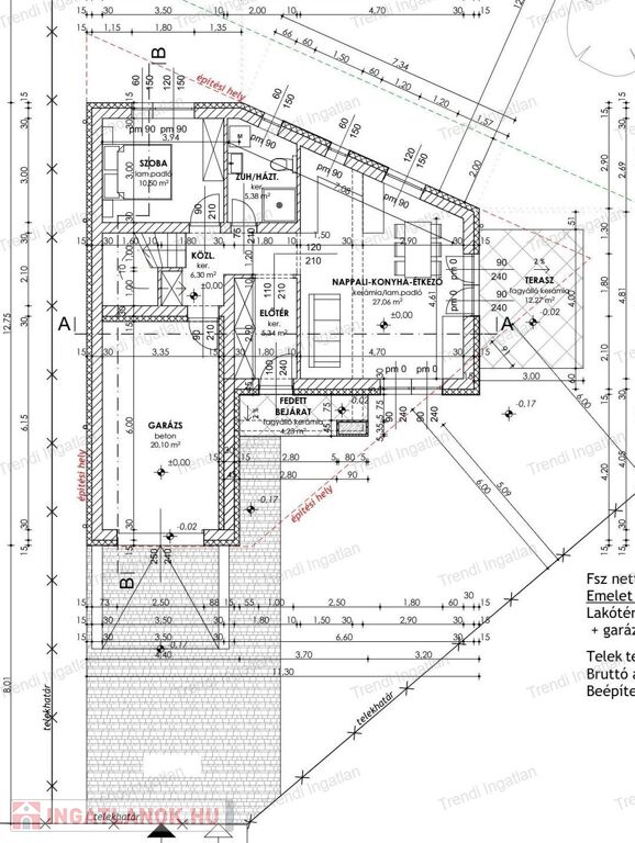
Enesén új építésű nappali + 3 szobás, 90,12 nm-es, kétszintes családi ház 639 nm-es telken eladó.
Minőségi kivitelezés és kiváló belső elrendezés jellemző a házra. A földszinten amerikai konyhás nappali, szoba, zuhanyzóval és WC-vel felszerelt háztartási helyiség, közlekedő, előtér található. A nappaliból nyílik 12,27 nm-es terasz. A közlekedőből elérhető 20,10 nm-es garázs. Az emeleten 2 szoba, fürdőszoba, gardrób, közlekedő került kialakításra. A konyhabútor minőségi beépített gépekkel (sütő, főzőlap, hűtő, mikrohullámú sütő, mosogatótálca csapteleppel) felszerelt. A szobák laminált parkettával, a többi helyiség járólappal burkolt.
A ház 30-as falazóelemből, 15 cm-es homlokzati szigeteléssel, 3 rétegű műanyag nyílászárókkal kerül kivitelezésre. A nappaliba klíma került felszerelésre. Az emeleti szobákban klímaelőkészítés található. Fűtésről kondenzációs kazán gondoskodik padlófűtéssel.
Az ingatlan kulcsrakész ára: 92.000.000 Ft.
Az ár tartalmazza a telek árát.
Kulcsrakész átadás várható ideje: 2025 november
Bővebb információkért forduljon hozzám bizalommal.
Hétköznap és hétvégén is várom hívását!
Díjmentes, bankfüggetlen hitelügyintézéssel állunk rendelkezésére.
A hirdetésben feltüntetett képek illusztrációk.
90 kvadratni meter
640 kvadratni meter
Odlično
Družinska hiša
Opeka
Ni dano.
Ni dano.
Z vsem komfortom
Novogradnja
Ni dano.
Ni dano.
Ni dano.
Enostavno iščite hišo, stanovanje, urad, garažo, parcelo ali kakršnokoli nepremičnino v naši bazi podatkov!
The Nepremicnine.hu is a member of the Real Estate Group.
Nepremičnine na prodaj na Madžarskem - Nepremicnine.hu © 2025 Vse pravice pridržane