Prevedeno besedilo
Originalno besedilo
Csend és nyugalom Érdliget szívében – két generáció számára is ideális családi ház!
Érdligeten, egy csendes és barátságos környéken vár rád ez a 2000-ben épült, remek állapotú, önálló családi ház, amely akár két generációnak is kényelmes otthont nyújthat. Az 557 m²-es telken fekvő ingatlan nettó 177 m² hasznos alapterületével bőséges helyet biztosít mindenki számára.
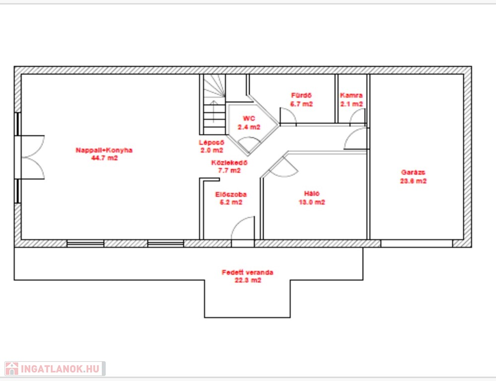
A földszinten egy tágas és világos átriumos nappali található, amely egybe van nyitva a konyhával, így tökéletes tér a közös családi időtöltéshez. Emellett itt kapott helyet egy hálószoba, egy fürdőszoba, valamint egy külön wc. A nappali nagy teraszajtaja elektromos redőnnyel van felszerelve, így a kényelem is garantált. Az egy autó számára elegendő garázs szintén elektromos ajtóval rendelkezik, ami még praktikusabbá teszi a mindennapokat.
Az emeletre felérve a galériáról letekinthetsz a nappalira, ami igazán impozáns, hiszen a belmagasság itt eléri a 6 métert. Ezen a szinten egy második nappali is található konyhával, három hálószobával és egy fürdőszobával, így a fenti lakrész akár önálló lakásként is használható. A melegvíz ellátásról itt egy villanybojler gondoskodik, míg a földszinten egy kombi gázkazán biztosítja a komfortot.
Az ingatlan modern építési megoldásokkal készült: a 30-as Porotherm téglából épült ház hőszigetelő nemesvakolattal és 15 cm Isolith szigeteléssel van ellátva a tetőtérben, így télen is remek hőmegtartó képességgel rendelkezik. A fűtést radiátoros hőleadással a gázkazán biztosítja.
Az elhelyezkedés kiváló: a közelben megtalálod a Napsugár óvodát, Spar áruházat, és a buszmegálló is csak néhány perc séta. Érd városközpontja és a vasútállomás autóval mindössze 10 perc alatt elérhető, így minden fontos helyszín könnyen megközelíthető.
Az ingatlan per-, teher-, és igénymentes, és ha hitelre lenne szükséged, abban is örömmel segítünk!
Ne habozz, keress minket bizalommal a megtekintésért!
177 kvadratni meter
557 kvadratni meter
Dobro
Družinska hiša
Opeka
Kondenzacijska cirko centrala
Plinsko ogrevanje
Ni dano
Ni dano
Ni dano.
2 etaži
Ni dano.
Enostavno iščite hišo, stanovanje, urad, garažo, parcelo ali kakršnokoli nepremičnino v naši bazi podatkov!
The Nepremicnine.hu is a member of the Real Estate Group.
Nepremičnine na prodaj na Madžarskem - Nepremicnine.hu © 2025 Vse pravice pridržane