Hiša na prodaj, Miškolc

Glavna stran » Hiša na prodaj, Miškolc » Hiša na prodaj, Miškolc

65 000 000 Ft

€168 437
Podatki oglasnika

Takács Alán

Pisanje sporočila
Sporočilo mora imeti najmanj 10 karakterov.
Opis

Prevedeno besedilo

Originalno besedilo
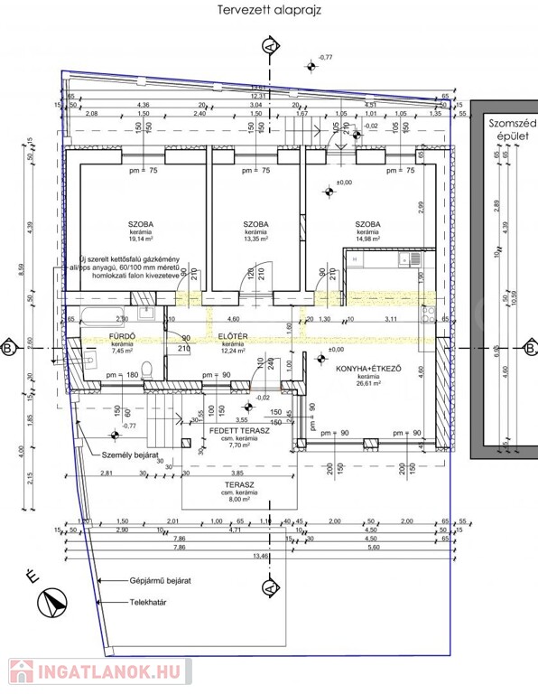
Miskolc, Árpád úton, új építésű, 3 szobás, 109 m²-es családi ház, 248 m²-es telekkel eladó!
A ház egy meglévő épületből lesz teljesmértékben átépítve, ahogy a tervrajzokon látható.

Az ár nem tartalmazza a konyhaszekrényt illetve a lámpatesteket, de igény esetén egyedi megállapodással ezek is megvalósíthatók.
A tervek szerinti kivitelezést kisebb mértékben módosítható.
Várható befejezés a 40%-os vételár megfizetését követően kb. 6 hónap.

Helyiség lista:
-Szoba
-Szoba
-Szoba
-Fürdő
-Előtér
-Konyha +étkező
-Fedett terasz
-Terasz

Műszaki leírás:
A meglévő épület bővítése a hátsókert felé történik, az bővített épület is nyeregtetős kialakítású lesz. Az épület környezetbe való illeszkedése nem változik.
Alkalmazott új szerkezetek, szerkezeti kialakítás:
Alapozás:
Az épület alapozása sávalapozással készült. Lábazat faragott mészkő, bővítés monolit beton.
Szigetelés:
Meglévő megmaradó, új részen sbs. bitumenes lemez.
Teherhordó szerkezet:
Meglévő épületnél a falazott kőalapra km. tégla falszerkezet épült, szerkezeti mozgásra falrepedés nem észlelhető.

Új falszerkezet Porotherm 30 cm vastagságú falazó elemből készül, rendszer ragasztójával rakva. Külső oldalra mind a régi mind pedig az új falazatra 15 cm hőszigetelés és vékonyvakolat kerül. A homlokzati nyílásáthidalások Porotherm elemmagas áthidalóval. Szerkezeti változtatás a statikus tervező által
előírtak szerint.
Válaszfalak:
Szerelt gipszkarton vagy válaszfaltégla szerkezetű. Nyílásáthidalások: A homlokzati nyílásáthidalások Porotherm elemmagas áthidalóval.

Nyílászárók: Korszerű, műanyag hőszigetelt típus szerkezetek, hőszigetelt üvegezéssel.
Födémszerkezet, új látszó fa gerendás födém. A bővítésnél monolit vb. födém. Koszorú a falazat tetején hagyományos kialakításban készül, vasbeton anyagú 25/30 cm keresztmetszetű, külső oldali hőszigeteléssel.
Hőszigetelés, a fal fokozott hővédelme miatt 15 cm EPS anyagú hőszigetelés kerül beépítésre a külső oldalon. A szarufák közé és alá összesen 25 cm hőszigetelés kerül eltolásban rakva.
Fedélszerkezet, fa tetőszerkezet készül. Szerkezete: 12°-os és 37°-os. Cserép héjazat alá 90 cm tengelyosztású szaruállások kerülnek. A talpszelemen tőcsavarokkal a koszorúba lefogatott.
Héjazat, antracit színű cserépfedés, alátéthéjazattal készül, a tetőléc 5/5 cm anyagú.

Fűtés: hőszivattyúval szabályozott padló és/vagy radiátor fűtés.
Meleg-víz: hőszivattyú által előállítva tartályos rendszer, mely későbbiekben megújuló energia csatlakozással gazdaságosan üzemeltethető.
Főzés: villany /gáztűzhely.

Közlekedés:
Az ingatlan autóval közvetlenül megközelíthető, parkolás a telken belül.
Tömegközlekedés megállói 0,5 perc sétára találhatóak.

podatki Hiša

109 kvadratni meter

248 kvadratni meter

Povprečno

Družinska hiša

Ni dano.

Kondenzacijska cirko centrala

Ni dano.

Ni dano

Novogradnja

Ni dano.

Ni dano.

Ni dano.

Slike