Prevedeno besedilo
Originalno besedilo
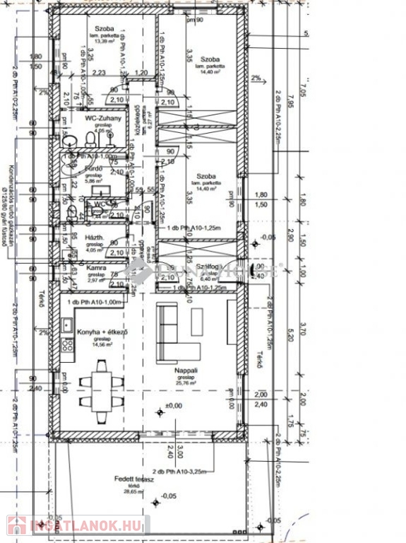
Pécs D-i részén a Postamester utcában eladó új építésű KÉSZ minimal stílusú családi ház.Az ingatlan lakótere 116nm-es, mely magába foglal egy tágas konyha-étkező-nappalit, 3hálószobát melyből az egyik saját fürdőszobával rendelkezik, továbbá egy külön fürdőt, mosdót és gépészeti helyiséget.A nappaliból nyílik a közel 30nm-es fedett terasz.Energetikája A+ - os. Fűtését turbógázkazán látja el, a tetőn napelem.A hűtésről és másodlagos fűtésről klímák gondoskodnak (4db.)A ház tájolása D-K-i, napos.Az ingatlan október végével-november elejével költözhető!
145 kvadratni meter
786 kvadratni meter
V gradnji
Družinska hiša
Opeka
Individualno ogrevanje
Plinsko ogrevanje
Ni dano
Novogradnja
Ni dano.
Pritlična hiša
Ni dano.
Enostavno iščite hišo, stanovanje, urad, garažo, parcelo ali kakršnokoli nepremičnino v naši bazi podatkov!
The Nepremicnine.hu is a member of the Real Estate Group.
Nepremičnine na prodaj na Madžarskem - Nepremicnine.hu © 2025 Vse pravice pridržane