Prevedeno besedilo
Originalno besedilo
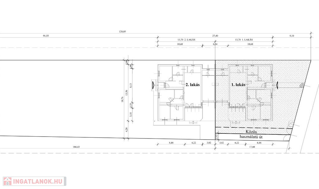
Megvételre kínálok Ráckevén 2db új építésű társas családiházat. Az ingatlanok Ráckeve kedvelt új építési övezetében vannak, közel a Dunaparthoz és a Strandhoz, Termálfürdőhöz.
1-es lakás ára: 99 000 000 Ft
127m2 360 m2 telekrésszel.
2-es lakás ára: 108 000 000 Ft
127m2 2 300 m2 telekrésszel.
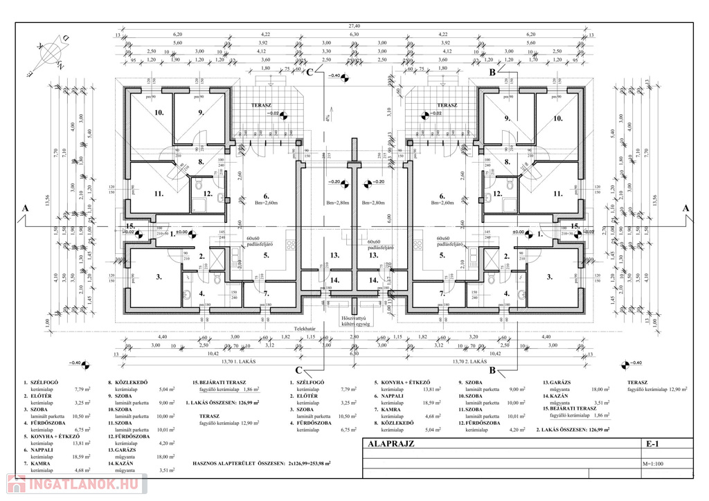
Mindkét lakás tartalmaz 4 szobát, amerikai konyhás nappalit, 2 fürdőszobát, spejzt, gardróbot, garázst. Akár 3 gyermekes család kényelmes lakhatását is biztosítja. Az épületek minőségi kivitelezéssel, prémium kategóriájú anyagok felhasználásával készülnek. Az ingatlanok 30 cm-es Porotherm téglából épülnek, 15 cm-es grafitos dryvit szigeteléssel, műanyag 7 légkamrás nyílászárókkal, valamint a tető Bramac beton cserépfedéssel kerül kialakításra. A fűtésről, hűtésről és a meleg vízellátásról, energiatakarékos, hőszivattyús fűtési rendszer (padlófűtés), illetve 3,6kW hűtő fűtő klíma gondoskodik.
Riasztó és napelem előkészítéssel, illetve elektromos garázskapuval. A ház jelenleg építés alatt, befejezése a vevő igényeit figyelembe véve történik. A burkolatokat, szanitereket, belső nyílászárókat, a tulajdonos választhatja a megállapodás szerinti értékhatárig. A vételár kulcsrakész állapotra vonatkozik, amely a konyhabútort nem tartalmazza.
Várom megtisztelő érdeklődését: Keresztes Zoltán 06-30-674-8605
127 kvadratni meter
0 kvadratni meter
Ni dano.
Družinska hiša
Ni dano.
Ni dano.
Ni dano.
Ni dano
Ni dano
Ni dano.
Ni dano.
Ni dano.
Enostavno iščite hišo, stanovanje, urad, garažo, parcelo ali kakršnokoli nepremičnino v naši bazi podatkov!
The Nepremicnine.hu is a member of the Real Estate Group.
Nepremičnine na prodaj na Madžarskem - Nepremicnine.hu © 2026 Vse pravice pridržane