Prevedeno besedilo
Originalno besedilo
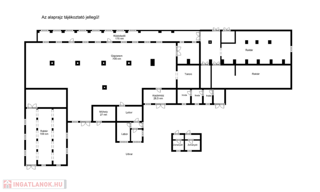
Eladó Békéscsabán egy 2157 m² alapterületű ipari ingatlan, amely korábban tollgyárként működött. Az ingatlan jó szerkezeti állapotban van, hatalmas terei és 7-9 méteres belmagassága számos ipari, logisztikai vagy gyártó tevékenységre alkalmassá teszi.
További jellemzők:
- 96 m mély fúrt kút, metánmentesítéssel – ipari vízellátásra kiváló,
- térburkolt udvar, teherautóval is könnyen megközelíthető,
- tágas, jól tagolható belső terek,
- 1452 m²-es telekméret,
- Gksz besorolású terület, max. magasság 10,5 m lehet.
Javasolt hasznosítási lehetőségek:
- gyártóüzem műhelyekkel,
- raktározó, logisztikai központ,
- feldolgozóipari telephely,
- bérbeadásra is kiváló befektetés.
Az ingatlan elhelyezkedése ideális olyan vállalkozások számára, akik központi helyet keresnek Békéscsabán belül, könnyű megközelíthetőséggel és jó infrastruktúrával.
További információkért és megtekintésért vegye fel velem a kapcsolatot!
(További képekért és információkért kérem hívjon!)
Povprečno
Drugo
Ni dano.
2 157 kvadratni meter
Ni dano.
Enostavno iščite hišo, stanovanje, urad, garažo, parcelo ali kakršnokoli nepremičnino v naši bazi podatkov!
The Nepremicnine.hu is a member of the Real Estate Group.
Nepremičnine na prodaj na Madžarskem - Nepremicnine.hu © 2026 Vse pravice pridržane