Parcela / zemljišče na prodaj, Szabadkígyós

Glavna stran » Parcela / zemljišče na prodaj, Szabadkígyós » Parcela / zemljišče na prodaj, Szabadkígyós

3 500 000 Ft

€9 251
Podatki oglasnika

Cseke Tamás

Pisanje sporočila
Sporočilo mora imeti najmanj 10 karakterov.
Opis

Prevedeno besedilo
Idealna velikost parcele za prodajo, z že izdelano urbanistično dokumentacijo! V Szabadkígyósu, enem najlepših in naravi prijaznih naselij v južni regiji Velike nižine, se prodaja gradbena parcela na odlični lokaciji, nekaj sto metrov od glavne ceste. Szabadkígyós se nahaja le 12 km od okrožnega središča Békéscsaba, le 17 km pa od zdraviliškega mesta Gyula. Parcela ima površino 1001 m2, idealno obliko in 20-metrsko ulično fasado. Javna infrastruktura ni priključena na nepremičnino, vendar je vse (voda, plin, elektrika, kanalizacija) na voljo pred parcelo, na javnem zemljišču, zato je njihov priključek enostavno rešiti. Szabadkígyós je na seznamu naselij, ki so upravičena do Vaškega šopka, zato je na parceli trenutno mogoče graditi pod najugodnejšimi pogoji. Nepremičnina je v 1/1 lasti, prosta bremen, pravno urejena in vključuje preprosto dokumentacijo o načrtu priglasitve za dokončano hišo, ki ustreza današnjim potrebam, kar je vključeno v ceno (stroški le-te trenutno znašajo 1,5–2 milijona forintov)! Szabadkígyós je zelo dinamično razvijajoče se naselje v županiji Békés, kar je posledica nedavno lepo prenovljenega gradu Wenckheim in grajskega parka, skoraj 5000 hektarjev naravnega varstvenega območja narodnega parka Körös-Maros, kjer je bila urejena tudi naravna pot, in znanega hleva lipicancev Ókígyós, saj so te znamenitosti naselje spremenile v turistični raj in odlično priložnost za naložbe v nepremičnine! (Več naše ponudbe najdete na uradni spletni strani VING.)

Originalno besedilo
Eladó ideális méretű telek, kész tervdokumentációval!

Eladóvá vált Szabadkígyóson, a dél-alföldi régió egyik legszebb és legtermészetközelibb településén, egy kiváló helyen lévő, a főúttól pár száz méterre elhelyezkedő építési telek.
Szabadkígyós Békéscsaba megyeszékhelytől mindössze 12 km-re található, de Gyula fürdővárostól is csak 17 km-re fekszik.
A telek 1001 m2 területű, ideális alakú, 20 méteres utcafronttal rendelkezik.
A közművek az ingatlanra nincsennek bekötve, de minden (víz, gáz, villany, szennyvízcsatorna) a telek előtt, közterületen elérhető, így könnyedén megoldható azok bekötése.
Szabadkígyós benne van a Falusi csokra jogosult települések listájában, így a jelenleg legkedvezőbb feltételekkel építhető be a telek.
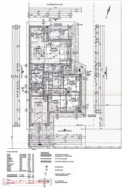
Az ingatlan 1/1 tulajdonban van, tehermentes, jogilag rendezett, illetve tartozik hozzá egy kész, a mai kor igényeinek megfelelő ház egyszerű bejelentési tervdokumentációja, melyet az ár tartalmaz (ennek bekerülési költsége jelenleg 1,5-2 M forint)!

Szabadkígyós Békés megyében egy igen lendületesen fejlődő település, amit a nemrégiben gyönyörűen felújított Wenckheim kastély és kastélyparknak, a Körös-Maros Nemzeti Park közel 5000 hektárnyi természetvédelmi területének, ahol egy tanösvény is ki lett alakítva, illetve a híres Ókígyósi Lipicai istállónak is köszönhető, hiszen ezeknek a látnivalóknak köszönhetően egy turista paradicsommá vált a település, így az ingatlan befektetésnek is kiváló lehetőség!
(További kínálatunkat keresse a VING hivatalos weboldalán.)

podatki Parcela / zemljišče

Gradbena parcela.

Ni dano.

Ni dano.

Notranjost naselja

Ni dano.

1 001 kvadratni meter

Ni dano.

Ni dano.