Stanovanje na prodaj, Budimpešta, II rajon.

Glavna stran » Stanovanje na prodaj, Budimpešta, II rajon. » Stanovanje na prodaj, Budimpešta, II rajon.

86 500 000 Ft

€228 540
Podatki oglasnika

Vincze Miklós

Pisanje sporočila
Sporočilo mora imeti najmanj 10 karakterov.
Opis

Prevedeno besedilo

Originalno besedilo
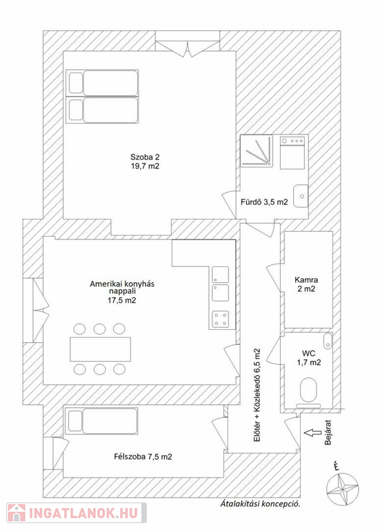
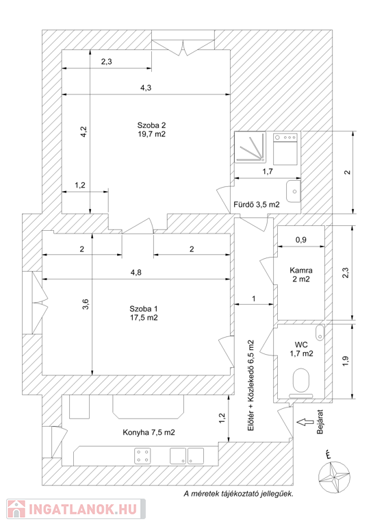
Eladó 59 nm-es, első emeleti lakás a Városmajor közelében, kiváló közlekedéssel, természetközeli elhelyezkedéssel.

Főbb jellemzők:
• 2 külön nyíló szoba, fürdőszoba, konyha, kamra, mosdó
• egész nap világos
• fekvés nem utcafronti
• zöldre néző kilátás (Svábhegy)
• északi hálószoba zöldterületre néz
• közvetlen napsütés délutántól napnyugtáig
• galériázható (+12nm)

Felújítás (2014) és állapot:
• felújított konyha, fürdő, mosdó, kamra, előtér
• teljes villamoshálózat csere
• vízvezetékek cseréje
• új külső nyílászárók és bejárati ajtó
• folyamatosan karbantartott állapot
• különösebb ráfordítás nélkül költözhető

Társasház és parkolás:
• rendezett, megtakarítással rendelkező ház
• segítőkész lakóközösség
• karbantartott közös terek
• házközponti fűtés (korszerűsítve 2018-ban)
• parkolás: éves engedéllyel kedvező áron
• közös használatú autóbeálló
• kerékpár tárolási lehetőség az udvaron
• közös költség 34.000.- (4 főre számolva)

Környék:
• Városmajor park karnyújtásnyira
• gyors elérés a belvárosba
• természet és kirándulóhelyek a közelben
• üzletek, vendéglátás, sportolási lehetőségek

Ideális otthon azoknak, akik a városi kényelmet, a természet közelségét vagy a kettő egyensúlyát keresik. További információkért keressen bizalommal!

podatki Stanovanje

1. nadstropje

Opeka

Centralno ogrevanje u hiši

Dobro

Z vsem komfortom

Stariji kot 50 let

59 kvadratni meter

Hiša v etažni lastnini

V svojem lastništvu

Deloma opremljen s pohištvom

Drvoriščen