Stanovanje na prodaj, Budimpešta, XI rajon.

Glavna stran » Stanovanje na prodaj, Budimpešta, XI rajon. » Stanovanje na prodaj, Budimpešta, XI rajon.

100 000 000 Ft

€258 900
Podatki oglasnika

Szalontai Zsuzsanna

Pisanje sporočila
Sporočilo mora imeti najmanj 10 karakterov.
Opis

Prevedeno besedilo

Originalno besedilo
Kész lakások Péterhegyen, az OTP Ingatlanpont projektértékesítő szakértőitől.
OTP hitelekhez kamatkedvezményt adunk a nálunk vásárló ügyfeleinknek!
Hitel és CSOK tájékoztatás, már a megtekintést követően, díjmentesen elérhető!
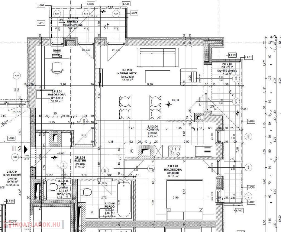
Lakások mérete: 43 nm-es, 1,5 szobás lakástól a 150 nm-es, 5 szobás és a tetőteraszos, exkluzív penthouseig.
Valamennyi lakáshoz lehetőség nyílik garázs vásárlására.
5-10 nm nagyságú tárolók választhatók.
Tudjon meg többet, hívjon bizalommal!

podatki Stanovanje

2. nadstropje

Opeka

Centralno ogrevanje s centralom u hiši (z individualnim merilcem)

V gradnji

Z vsem komfortom

Novogradnja

66 kvadratni meter

Ni dano.

Ni dano.

Ni dano.

Gleda na vrt

Zemljevid