Stanovanje na prodaj, Érd

Glavna stran » Stanovanje na prodaj, Érd » Stanovanje na prodaj, Érd

134 900 000 Ft

€345 906
Podatki oglasnika

Venczel Bea

Pisanje sporočila
Sporočilo mora imeti najmanj 10 karakterov.
Opis

Prevedeno besedilo

Originalno besedilo
Érd Parkvárosi részén BELSŐ 2 SZINTES PENTHOUSE LAKÁS ELADÓ!

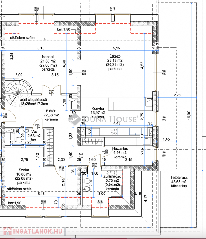
Rendkívüli lehetőség Érd Parkváros központi részén, közel a Bem térhez . Most Öné lehet kedvező m2 áron egy nettó 173 m2-es lakás 44 m2-es terasszal. Már csak a burkolatokat és ajtókat kell kiválasztania ízlése szerint és költözhet is !

Tágas, világos terek köszönhetően az egyedi jó méretű nyílászáróknak.
Az ingatlant a 2025-ös év kedvezményes feltételeivel is megtudja vásárolni, az ingatlan cég tulajdonában van, használatbavételi engedéllyel már rendelkezik.
Foglalja le most leendő otthonát 10%-al. Saját ízlése és igénye szerint választhatja ki a lakás belső kinézetét.
Amennyiben egyedi igényei lennének az elosztással kapcsolatban a kivitelező rugalmas a változtatásokra.
Elosztását tekintve:- Tágas előszoba- Fürdőszoba- Háztartási helyiség- Külön mellékhelyiség- 1 hálószoba - Tágas és világos amerikai konyhás nappali 43 m2-es teraszkapcsolattal
Tetőtér:- 3 egész méretű hálószoba- 1 fürdőszoba mellékhelyiséggel

Műszaki adatok:
- A társasház monolit vasbeton szerkezetből épült, 26 db lakás található 4 szinten.
- 15 cm homlokzati szigetelés
- Házközponti fűtés egyedi mérővel (hőszivattyú, fan coil rendszer, amely a hűtést szolgáltatja, H-tarifa
)- Minden helyiségben padlófűtés
- Tetőn korcolt lemezfedés
- 3 rétegű 6 légkamrás nyílászárók
- Szaniterek - Hideg/meleg burkolatok ( 10 000 Ft/m2 meleg: 10 000 Ft/ m2 )
- Beltéri ajtók ( 100 000 Ft/db )
- 5 ponton záródó bejárati ajtó

EXTRÁK:
- 2 db felszíni parkoló
- Redőny szúnyoghálóval

Környék rendezett, csendes, minden perceken belül elérhető gyalog és autóval egyaránt

Amennyiben az ingatlan felkeltette érdeklődését, kérem keressen bizalommal!

podatki Stanovanje

3. nadstropje

Opeka

Ni dano.

V gradnji

Ni dano.

Novogradnja

173 kvadratni meter

Ni dano.

Ni dano.

Ni dano.

Ni dano.

Zemljevid