Prevedeno besedilo
Originalno besedilo
Oroszlány belterületén, hatalmas lehetőségekkel rendelkező
ingatlan eladó!
Ez az ingatlan több lehetőséget kínál, mint elsőre gondolnád
– családi háznak, lakások kialakítására vagy akár vendéglátó egységnek is
tökéletes választás!
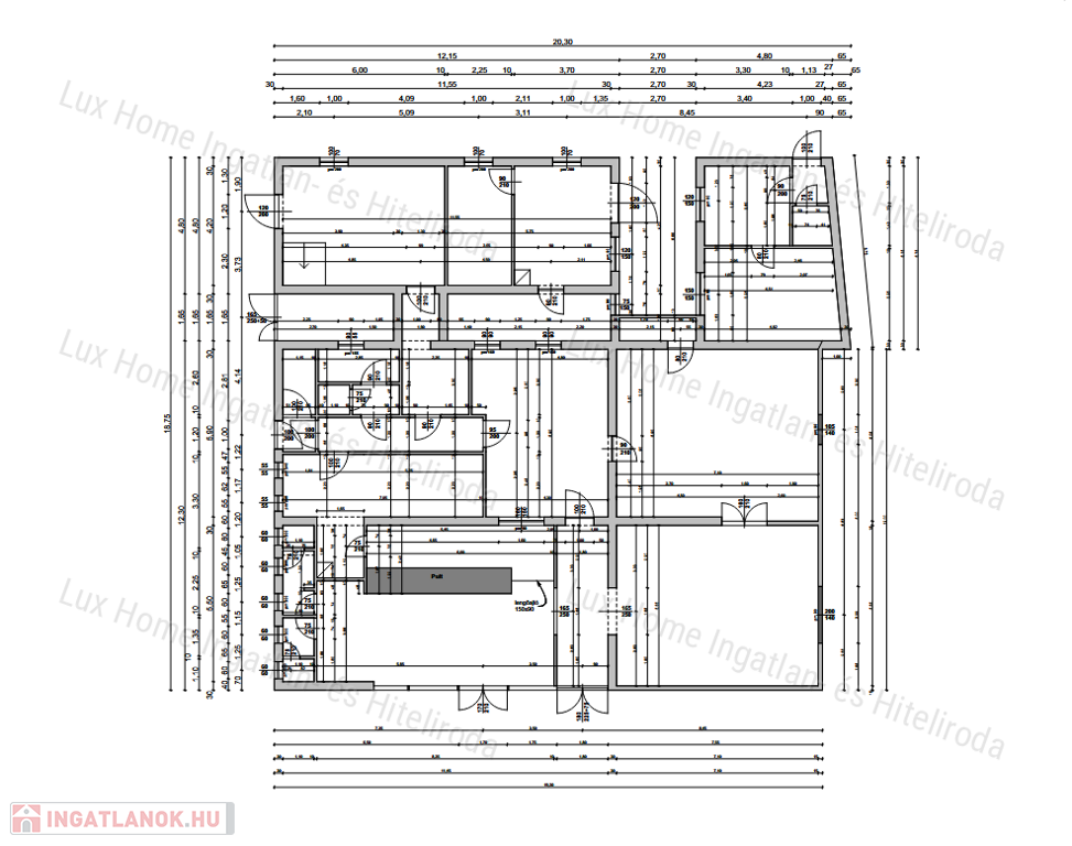
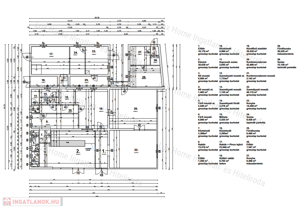
Eladásra kínáljuk ezt a 325 m² hasznos alapterületű, 1200 m²-es telken
elhelyezkedő ingatlant, amely már lakóingatlanná lett minősítve, és kiváló
alapot biztosít többféle hasznosításra:
- többgenerációs családi háznak,
- újépítésű lakások kialakítására
ráépítéssel,
- vagy akár vendéglátó/üzleti
egységként.
A Lux
Ingatlaniroda Oroszlány kínálatából az ingatlantárban 182501613 számon eladó
Oroszlány, téglalakás jellemzői:
Az
ingatlanban jelenleg 2 különálló lakás található, valamint egy nagy, sokrétűen
hasznosítható főépület. Az átalakítások elkezdődtek:
- teljes vezeték- és vízcsőrendszer csere
- modern fűtésrendszer 28 radiátorkiállással
- korszerű elektromos hálózat ipari villanyszekrénnyel és almérőkkel
- riasztórendszer
- több helyiségben gipszkartonozás
A főépülethez
teraszok kapcsolódnak, előtte több gépkocsi parkolására van lehetőség. Az
épület több bejárattal rendelkezik, alatta betonozott pince és teherlift is
megtalálható.
Kiváló
elhelyezkedés: Tatabánya 15 km, az M1 autópálya percek alatt elérhető, a
környék ipari parkjai pedig stabil munkaerőpiaci hátteret biztosítanak.
Ez az
ingatlan egyaránt remek befektetés és otthonteremtési lehetőség azoknak, akik
fantáziát látnak a benne rejlő lehetőségekben!
Amennyiben a Lux Ingatlaniroda által kínált Oroszlány, téglalakás vagy az ingatlantárban bármely más hirdetés felkeltette az érdeklődésed, keress bizalommal!
Ingatlantár azonosító: 182501613
A Lux Ingatlaniroda tagjaként várom hívásod az országos hálózatunk teljes kínálatával. További szolgáltatásainkkal (pl. virtuális séta, drón videó, energetikai tanúsítvány, jogi háttér, díjmentes és bankfüggetlen hitelügyintézés) is segítünk a vásárlásban.
Számolj velünk
Ni dano.
Opeka
Ni dano.
Za obnovo
Ni dano.
Ni dano.
325 kvadratni meter
Ni dano.
Ni dano.
Ni dano.
Ni dano.
Enostavno iščite hišo, stanovanje, urad, garažo, parcelo ali kakršnokoli nepremičnino v naši bazi podatkov!
The Nepremicnine.hu is a member of the Real Estate Group.
Nepremičnine na prodaj na Madžarskem - Nepremicnine.hu © 2026 Vse pravice pridržane