Stanovanje na prodaj, Vámosszabadi

Glavna stran » Stanovanje na prodaj, Vámosszabadi » Stanovanje na prodaj, Vámosszabadi

70 940 000 Ft

€183 754
Podatki oglasnika

Unger-Takács Anikó

Pisanje sporočila
Sporočilo mora imeti najmanj 10 karakterov.
Opis

Prevedeno besedilo

Originalno besedilo
Vámosszabadi Szitásdomb II lakóparkban ajánlom figyelmébe ezt az új projektet:
35 lakásos társasház, 3 szint, prémium anyagok, megbízható kivitelező!

Jelen hirdetésben az első emeleten, az L1-2 számú lakást szeretném bemutatni:
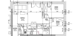
Az ingatlan 61,67 m²-es lakótérrel rendelkezik, egy 18,54 m2-es erkély kapcsolattal.
A lakás jól átgondolt kialakítása magába foglal egy tágas amerikai konyhás nappalit, két hálószobát, előszobát és egy fürdőszobát. A pontos elrendezését a fotók között feltöltött alaprajz mutatja be.
A lakás emeltszintű fűtéskész állapotban kerül átadásra, így a befejezés az Ön a saját elképzelése szerint valósulhat meg.

Az épületről:
- teherhordó- és térelhatároló falszerkezetek: POROTHERM 30 N+F falazóelem
- lakáselválasztó teherhordó falazat: LEIERTHERM 25/30 AKU hanggátló tégla
- válaszfalak: POROTHERM 10 N+F falazóelem, 10 cm vastagságban
- homlokzati hőszigetelés: 15 cm AUSTROTHERM AT-H80
- homlokzati nyílászárók: VEKA 76AD kívül-belül fehér szerkezetek, redőnnyel
- fűtés központilag, levegő-víz hőszivattyú teleppel, hőleadás mennyezetfűtéssel, klimatizálás mennyezet hűtéssel biztosított
- lakások egyedi hőmennyiségmérővel, szobatermosztáttal, fürdőszobában padlófűtéssel, törölközőszárítóval

A lakáshoz opcionálisan vásárolható tároló helyiség, illetve felszíni parkoló is.
Várható átadás: 2026. ősz

Az ingatlan elhelyezkedése kiváló, hiszen Győr központja és az autópályafelhajtó is könnyen elérhető.
Új, modern házakkal beépített környék, a városi és vidéki buszközlekedés is elérhető.
Ha egy modern, saját igényei szerint alakítható otthont keres, amely csendes, mégis jól megközelíthető helyen található a városhoz közel, akkor hívjon!
Több szabad lakás is van még a projektben, ha ez pont nem az igényeinek megfelelő, mutatom a többit is!
További információért és megtekintésért keressen bizalommal.
(További képekért és információkért kérem hívjon!)

podatki Stanovanje

Ni dano.

Opeka

Ni dano.

Gotova konstrukcija

Ni dano.

Ni dano.

62 kvadratni meter

Ni dano.

Ni dano.

Ni dano.

Ni dano.

Slike